Refine Search

8251 SE Woodlawn Road , Lawton, OK 73501

$355,000
  • 8251 SE Woodlawn Road , Lawton, OK 73501 Main Photo

39 Total Photos [Click to View All]

New to the Market Active
BEDS2 BATHS2 full SQUARE FEET1,800 MLS#2607708
STATUSActive PROPERTY TYPEResidential - Single Family SUBDIVISIONFarm 1n-10w SCHOOLLawton - Sch Dist

Property Description

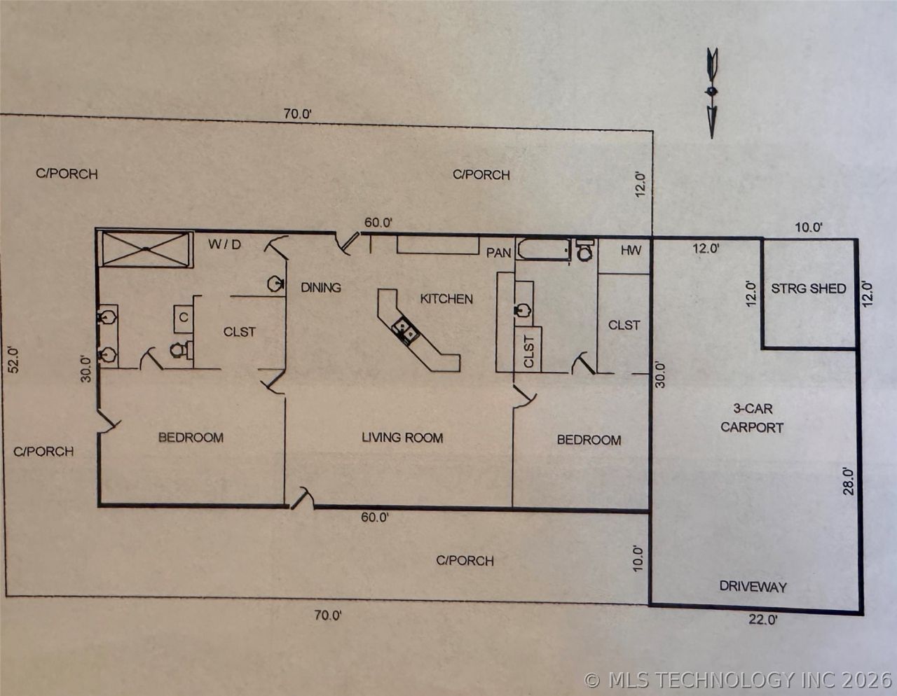
5 Acres - You'll find plenty of space to relax and enjoy country living in this, 2-bedroom, 2-bath home with an attached 2-car carport with storage. Inside, you'll enjoy the open living, kitchen, and dining area that makes everyday living and family gatherings easy. The layout (see attached floor plan in the pictures) features two large primary bedrooms on opposite sides of the home, giving everyone their own space and privacy. Each suite includes a large bathroom and a large walk-in closet. Step outside and enjoy the wrap-around porch-perfect for morning coffee, evening sunsets, or simply taking in the peaceful surroundings. There's also a hot tub for unwinding at the end of the day. The property also includes a large shop/barn with both a dedicated shop area and a separate section set up for livestock. With water and electricity already in place, it's ideal for projects, hobbies, or raising animals. The livestock area would be perfect anyone involved in FFA or 4-H, giving them space to keep and care for their animals right at home. Barn size 47X35 mol animal section 12X35 WELCOME HOME

8251 SE Woodlawn Road | MLS# 2607708

This single family home located at 8251 SE Woodlawn Road , Lawton, OK 73501 is currently listed for sale with an asking price of $355,000. This property was built in 2017 and has 2 bedrooms and 2 full baths with 1800 sq. ft. SE Woodlawn Road is located in the Farm 1n-10w subdivision within the Lawton - Sch Dist school district. Search Farm 1n-10w real estate on www.harwellhometeam.net today.

Property Features

Property Type: Residential - Single Family
Cooling: Central Air
Garage: 2 car attached
Heating: Central, Electric
Lot Size: 5.00 Acres
Roof Type: Metal
Stories: 1.0
Taxes: $1,500
Year Built: 2017

Amenities

Granite Counters
Ceiling Fan(s)
Gas Range Connection
Programmable Thermostat

Feature Descriptions

Appliances: Dishwasher, Electric Water Heater, Microwave, Oven, Range, Refrigerator, Stove
Days on Site: 1
Exterior: Steel, Wood Frame
Fencing: Partial
Flooring: Concrete
HOA Y/N: No
Lot: None
Parcel#: 0101934
Parking: Attached, Carport, Garage
Parking Notes: Attached, Carport, Garage
Patio/Porch: Covered, Porch
Pool: Above Ground, Liner
Security: No Safety Shelter, Smoke Detector(s)
Sewer: Aerobic Septic
Spa: Yes
Spa: Hot Tub
Swimming Pool: Yes
Utilities: Electricity Available, Natural Gas Available, Water Available
Water: Rural
Window: Vinyl

Local Schools

High School: Lawton
Elementary School: Sullivan Village
School District: Lawton - Sch Dist

Listed By / Shown By

Listed By

Agency Name: Pebbles Real Estate

Shown By

Agent Name: Harwell Home Team
Agent Phone: (918) 863-7000
Agency Title: Chinowth & Cohen

IDX logo

Estimate Your Payment

Estimated Payment

$ 1,018.62 per month $790.08 Principal & Interest $125.00 Property Tax $103.54 Homeowner's Insurance

Change Payment Information

%
years/fixed
yearly
yearly (est.)
(Payments are an estimate and may vary by lender)

Login to My Homefinder

Pixel